• 网站首页
  • 走进广盛
      公司简介
      荣誉资质
      企业文化
      组织架构
      发展历程
      精英团队
      视频中心
  • 新闻资讯
      公司资讯
      活动展会
      行业新闻
  • 产品中心
      防火卷帘门系列
      挡烟垂壁/防火隔断系列
      防火窗系列
      防火门系列
      防火防盗入户门系列
      救援窗/排烟窗系列
      抗爆门窗/抗爆墙系列
      泄爆门窗/泄爆墙系列
      快速卷帘系列
      抗爆卷帘系列
      防盗卷帘门系列
      医疗门/洁净门窗系列
      工业门系列
      密闭门/冷库门系列
      抗震支架系列
      护栏系列
      卸货平台系列
  • 工程案例
      重点案例
      省内案例
      省外案例
      工程业绩
  • 市场营销
      营销网络
      招商合作
      合作伙伴
  • 服务中心
      服务指南
      常见问题
      质量标准
      意见反馈
  • 联系方式
  • 新闻资讯

    NEWS

    • 公司资讯
    • 活动展会
    • 行业新闻
    公司厂址:福建省泉州市清濛经济技术开发区兴泰路129号
    商 务 部:林经理:13599228618
    企业总机:0595-28052119
    传  真:0595-28058119
    邮  编:362000
    企业网址:www.fjgsxf.com
    企业邮箱:fjgsxf119@163.com
    商务QQ及邮箱:1830464416
    1830464416@qq.com
    首页 > 新闻资讯 > 行业新闻
    行业新闻
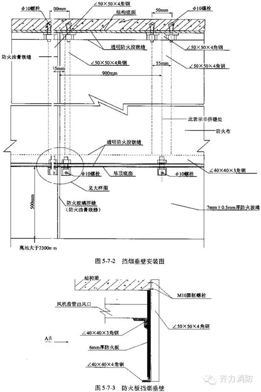
    挡烟垂壁的安装顺序是怎样的呢?
    来源: 日期:2018-05-19
        大家有没有留意过,在地铁站台的楼梯口,都会有一圈玻璃在上方围着。有网友问这有什么作用吗?没错,这并不是装饰性的玻璃,有个专业名字叫“挡烟垂壁”。在火灾发生时,能有效阻挡烟雾在建筑顶棚下横向流动,从而阻挡烟雾的蔓延, 是专业消防设施之一。
        
        挡烟垂帘垂壁根据设计要求和现场实际情况采取如下施工顺序:搭设脚手架一放线一打眼--上胀栓一焊骨架、吊件一安装骨架、吊件一调整水平、垂直度--安装防火帘片防火板一安装  防火玻璃一安装不锈钢玻璃盖板。
        注意:挡烟垂壁每档连接处留有的5mm间隙,用透明防火胶粘接,并保证防火玻璃遇高温时有膨胀的空间。安装下了前应进行现场实地测量,保证下料尺寸合理、准确,均匀分段,夹丝玻璃吊装孔的不为分布也要合理,玻璃上部不锈钢装饰条应有一定强度,不能太软,两块夹丝玻璃板连接处下部应采用不锈钢卡子卡牢。卡子还可固定、校正两块玻璃板在一条直线上。增加挡烟垂壁的美观程度。
        防火布所在位置的上端角钢用膨胀螺栓直接固定在建筑顶部,下端角钢用膨胀落山固定在两端的墙或立柱上。上下端角钢之间用角钢分为若干档,每档间距依实际空间及厂家产品而定。如没有规定,按图纸要求定位900mm,分档的竖向角钢与上下端角钢焊接。
        当采用防火布时以每档尺寸把防火布裁成需要的规格,保证防火布在每档角钢处重叠,重叠尺寸大于或等于60mm,上下端有翻边,保证固定后不漏风。防火布固定采用2mm厚的钢板作压条,用拉柳丁拉紧,拉柳丁间距为120mm。当采用防火做封堵时应以每档尺寸用扁钢或角钢制成方框,打孔上螺栓固定,两边加垫块螺母拧紧,间距为150mm。
     
    中国消防产品信息网|
    版权所有 (©)2017 福建省广盛消防科技有限公司(www.fjgsxf.com) 闽ICP备17004645号